中國設計微刊,專注「家居、時尚、創意」設計分享
設計空間 | 書畫藝術 | 生活美學
喜歡設計進入抖音 「空間設計 」 → 搜尋【kongjiansheji88】 → 進入視頻「點個關注 + 」
空間設計出品┃轉載請註明來源
來源:空間設計(ID:kongjiansheji88)
北歐風設計

每天給你分享一個案例設計
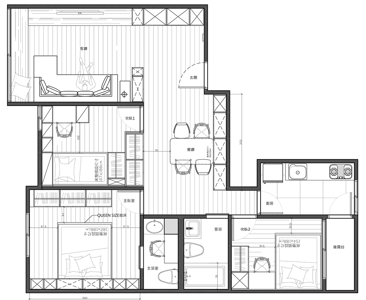
這套住宅位於台灣新北
面積:82.5㎡套內
格局:3 房 2 廳 2 衛
居住人數:2 大 1 小
由 Order 歐德家俱連鎖事業 設計




從幕後製作人到幕前擔綱主持人,無論是走遍世界各地,或蒐羅全台各地好吃、好玩景點,常常看到重量級玩家 顏永烈 將歡笑帶到螢光幕前,而行旅這一站,走到了自宅新家,這次將屋齡 25 年的老屋翻新,全權交託由 Order 歐德家俱連鎖事業 設計師謝美香,悉心砌造甜蜜居家。
育有兩個寶貝兒子的 顏永烈,擁有令人生羨的家庭生活,為了給孩子合適學區,就近與長輩相互照應,捨棄偏遠新成屋,購下交通便利、生活機能較佳的老屋,拆除全室舊裝潢、消防管線換新、將原兩房與一間更衣室的格局,微調為舒適三臥房,華麗變身為一家四口的快樂日光宅邸。


推開中古老宅,無論晨光熹微、夕暮馀光都能成為屋內極佳的光源

鄉村風的裝飾,加以黑白普普風造型的六角地磚,形構一處落塵區

客廳以莫蘭迪灰藍作為沙發背牆,與白系文化石相對,天然質地的粗獷有致結合

木作與鄉村風花紋相構,深達 60 公分的電視櫃,與面窗的臥榻側對

利用微穿透的長虹玻璃,與黑色烤漆鐵件型塑屏風






















