跳至主要內容
找不到符合條件的結果
wechat中文網
搜尋
wechat中文網
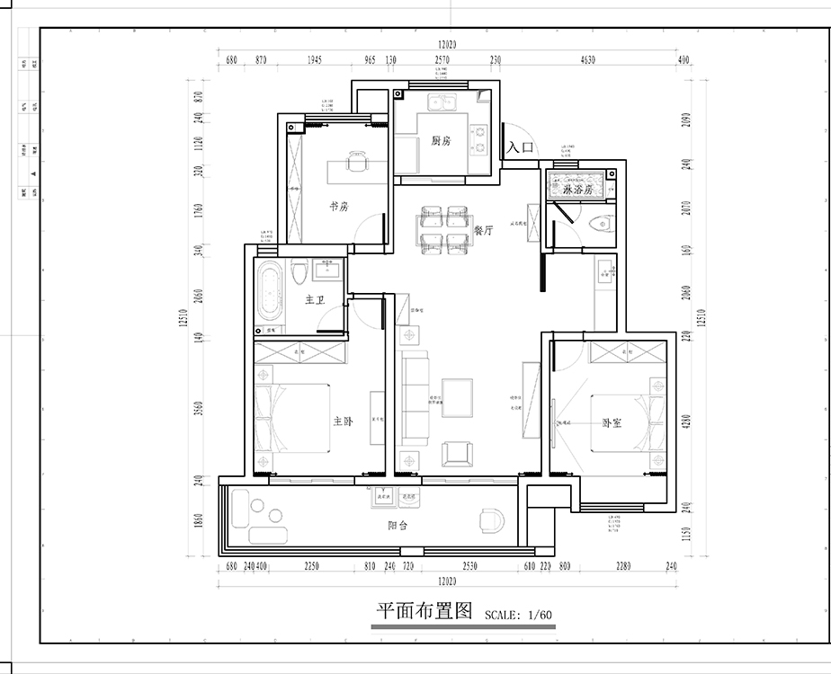
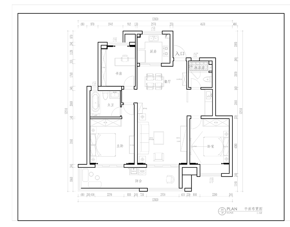
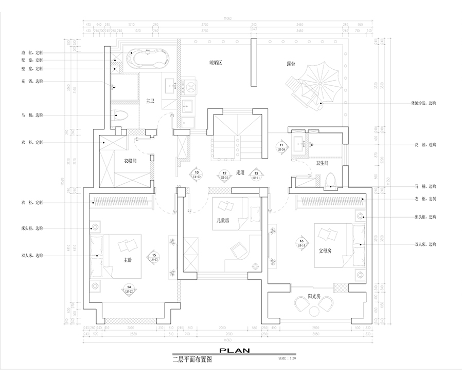
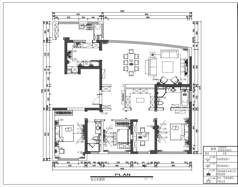
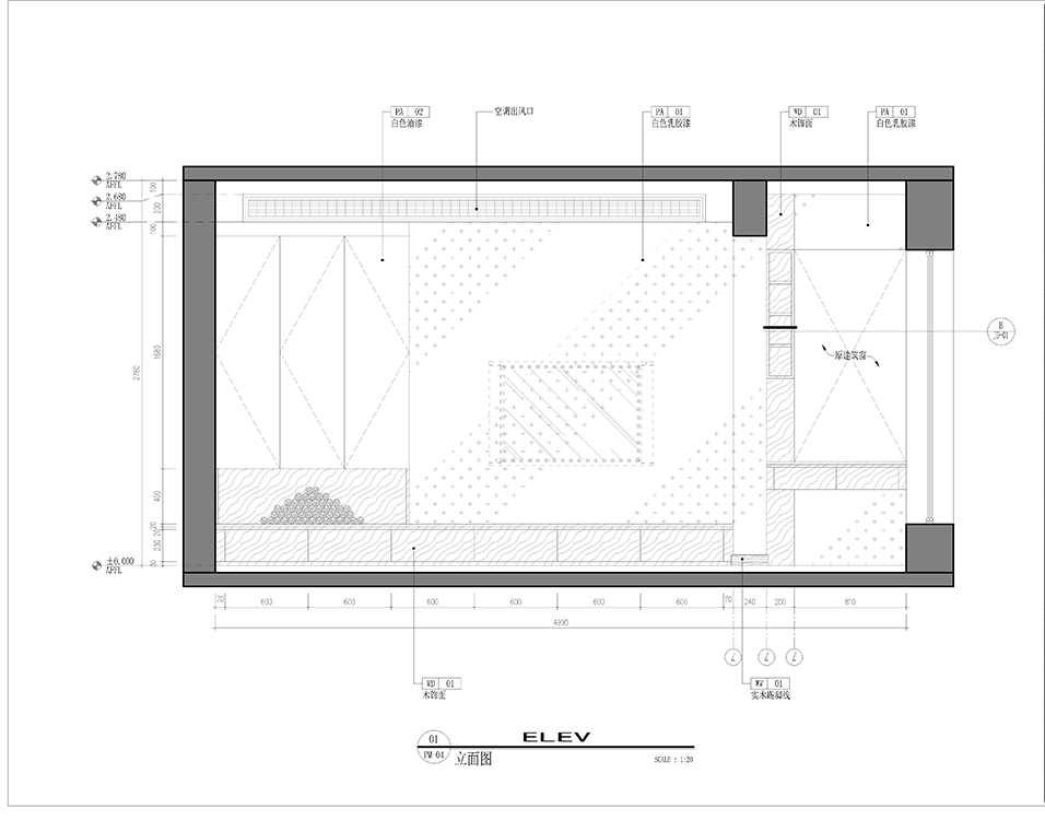
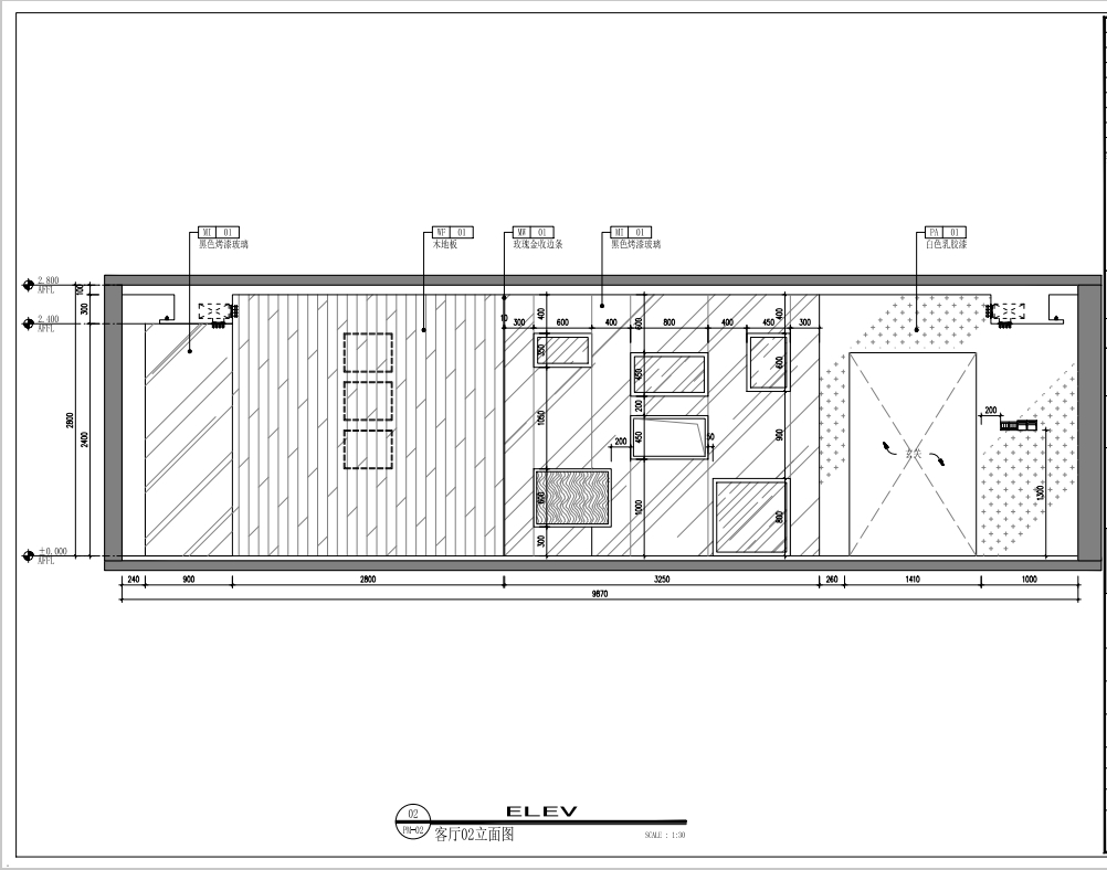
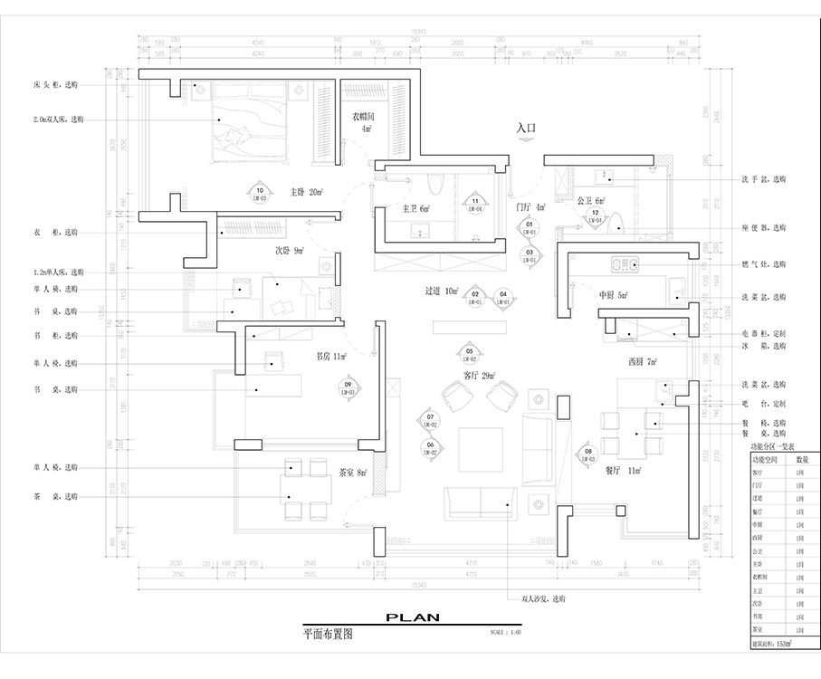
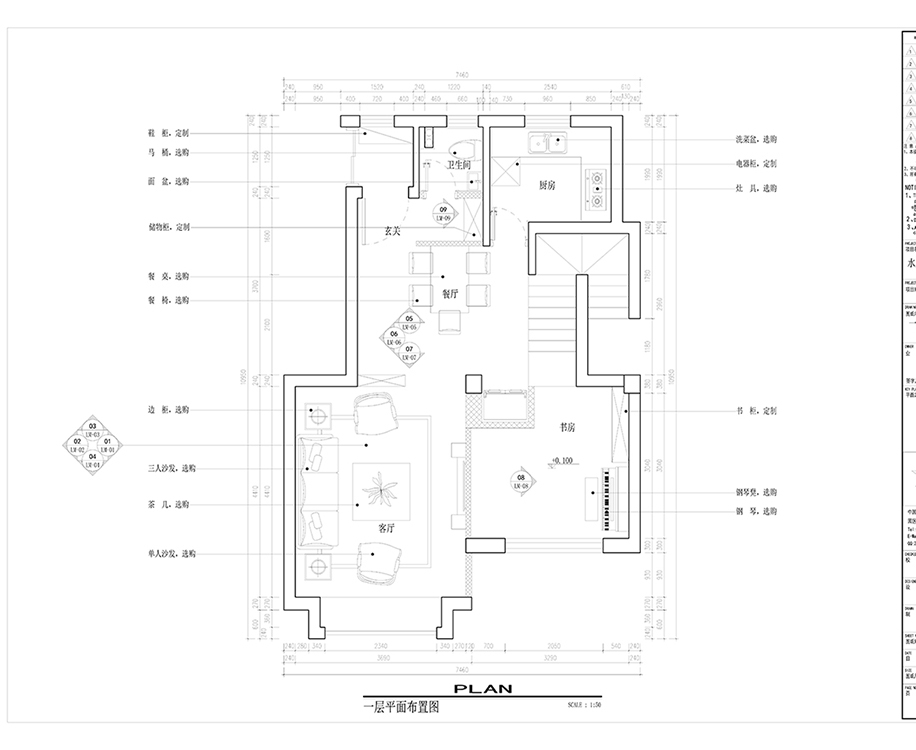
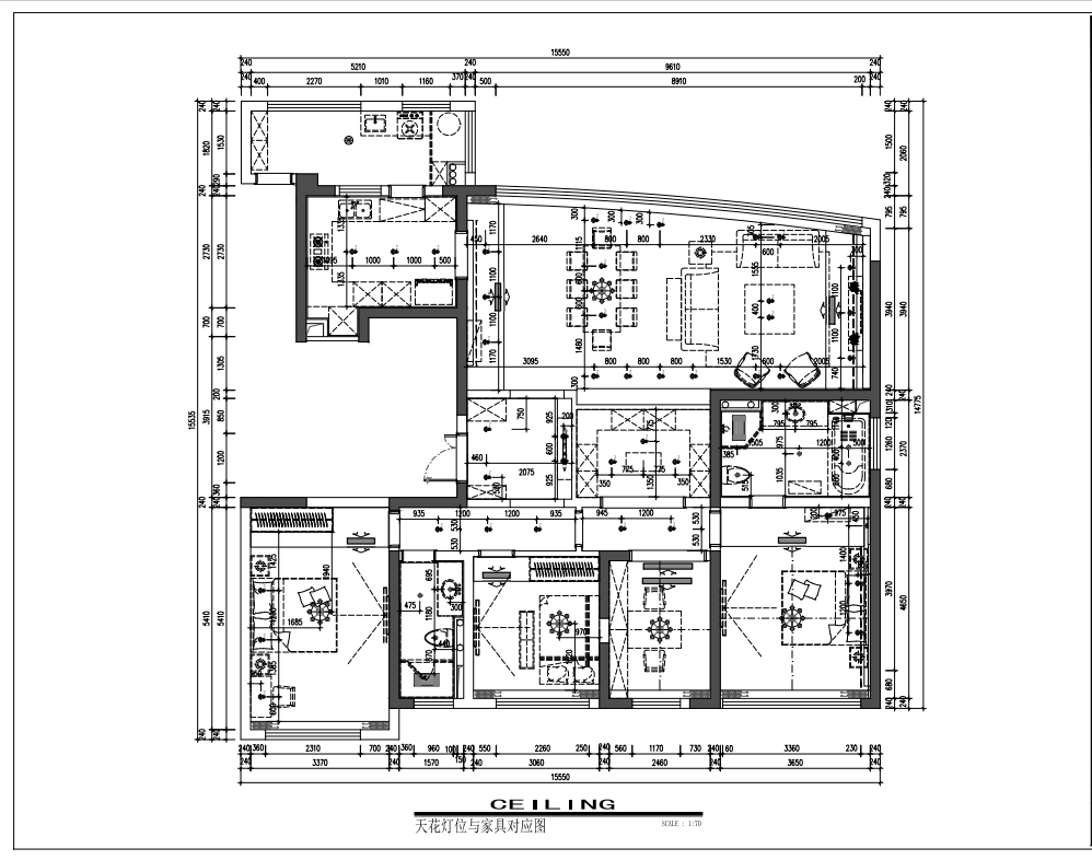
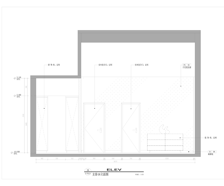
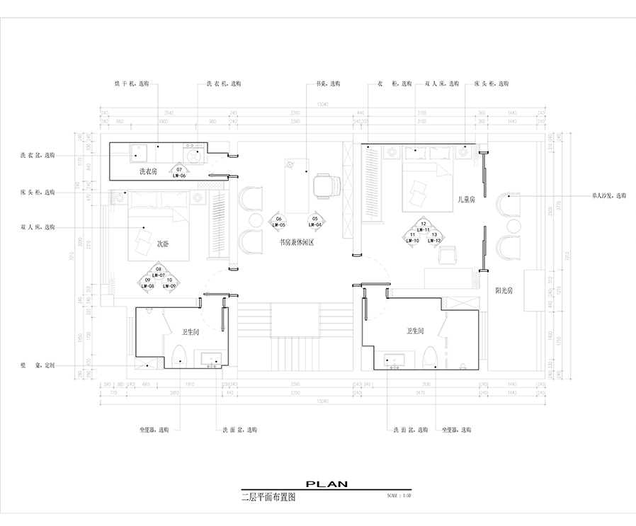
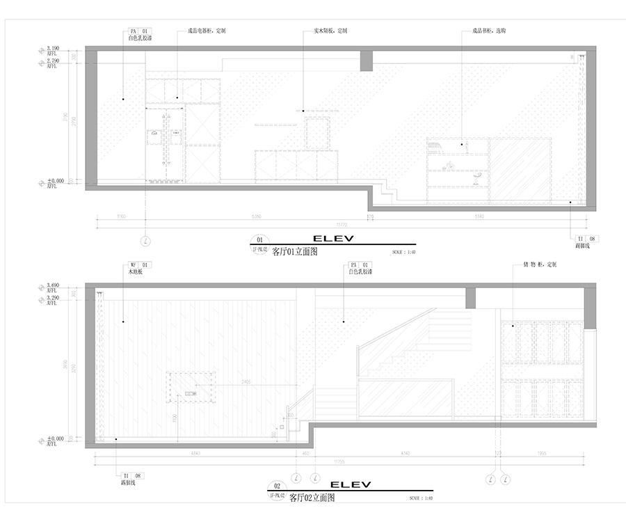
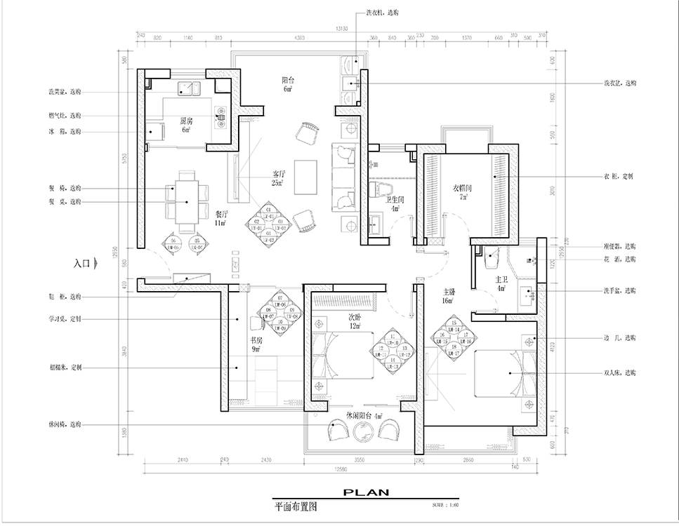
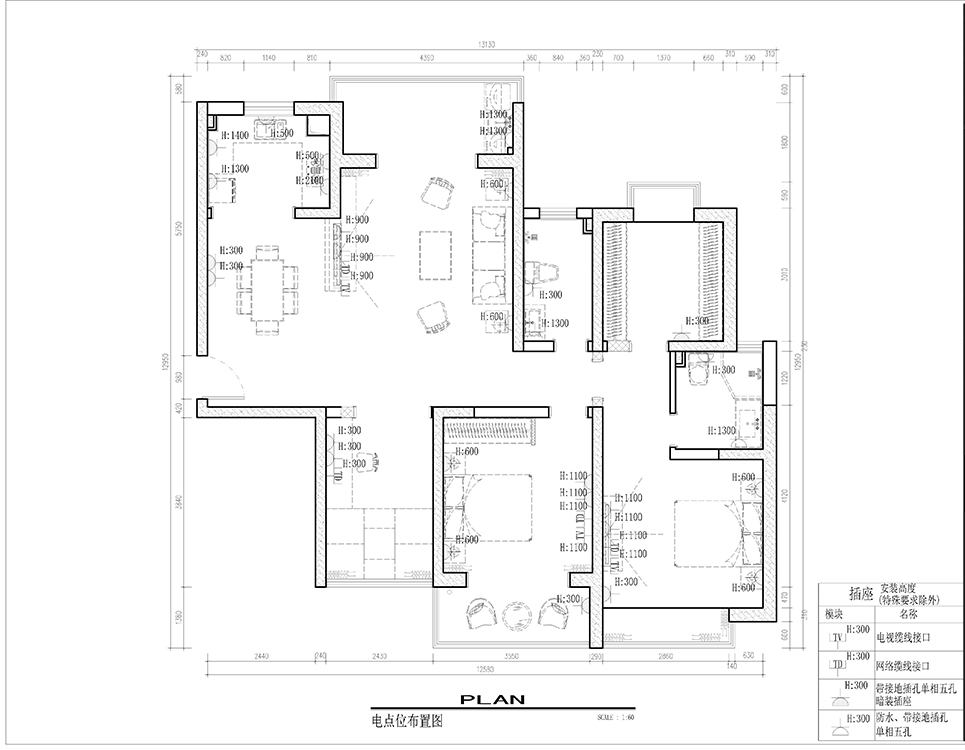
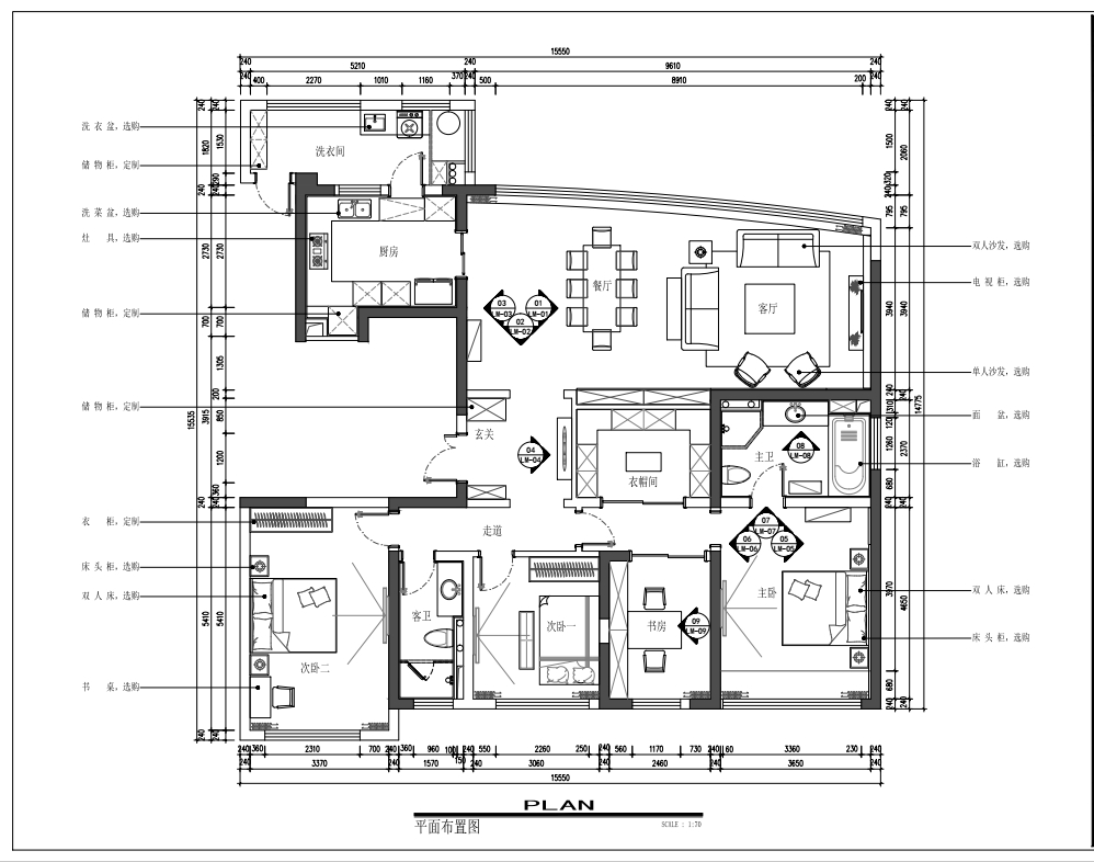
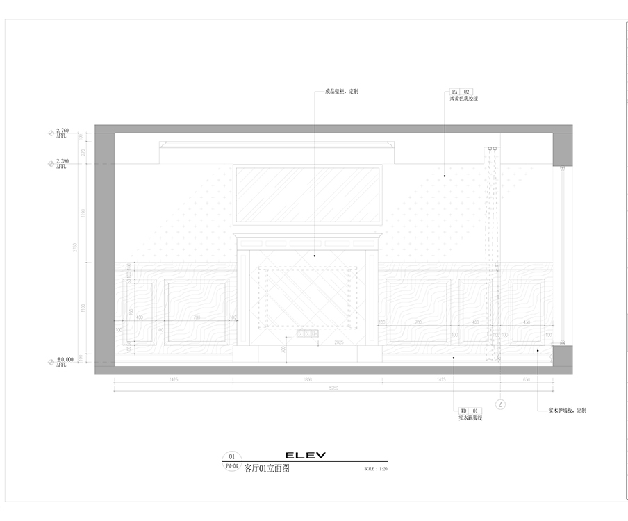
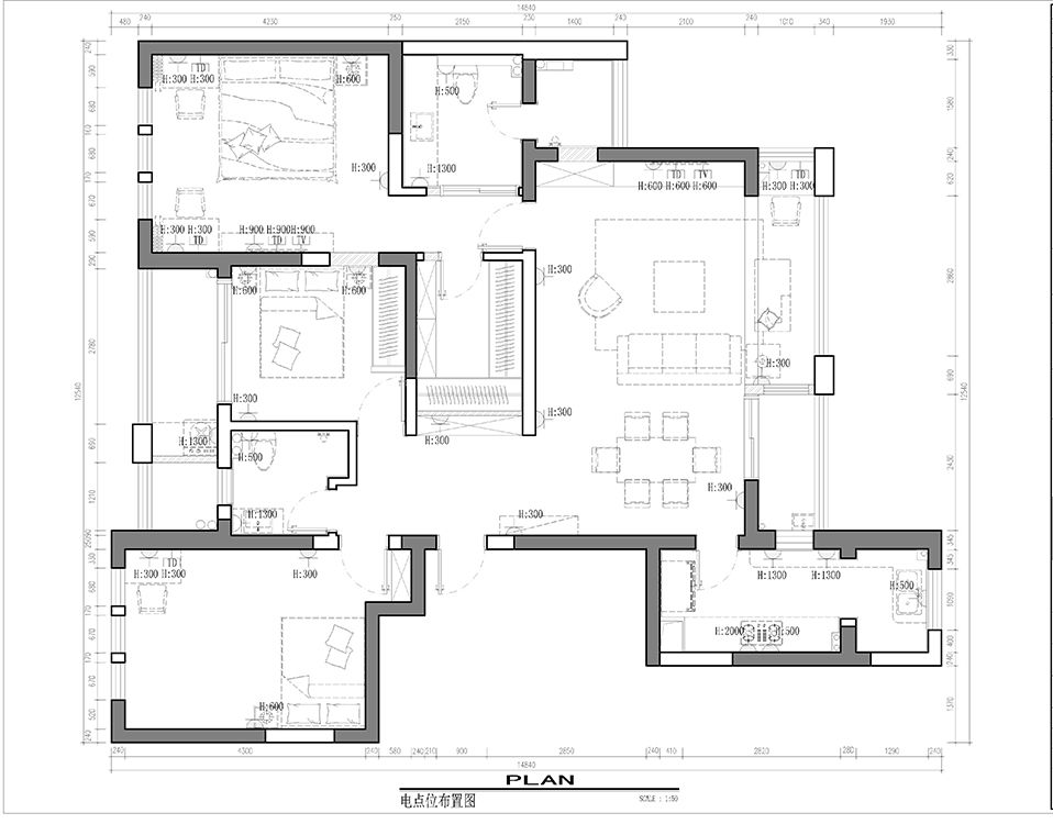
【新成屋輕裝潢相關資料】實景圖+施工圖紙,共97張室內實景裝潢效果圖!聰明人都會收藏!
2022 年 2 月 28 日
實景圖加部分施工圖紙,裝潢就需要這樣,需要的可以拿去參考哦!
>他的軟裝設計世界堪稱頂級他的軟裝設計世界堪稱頂級
2022 年 10 月 5 日
>宋茜宅家度過生日 懷抱寵物小碗素顏出鏡狀態佳【寵物宅設計情報分享】宋茜宅家度過生日 懷抱寵物小碗素顏出鏡狀態佳
2022 年 10 月 5 日
>台灣165㎡老屋改造,一家四口的開放式陽光寵物親子宅,超有愛!【寵物宅設計情報分享】台灣165㎡老屋改造,一家四口的開放式陽光寵物親子宅,超有愛!
2022 年 10 月 5 日
【輕裝潢推薦相關資料】深圳工業產品設計要多少錢?
2022 年 10 月 4 日
裝修預算相關資料/淮南二手房翻修:136m²美式風格融合輕奢元素,預算25萬沒夠
2022 年 10 月 4 日
【裝潢線上估價相關資料】要談輕裝潢重裝飾,還得跟北歐國家學習,這裝潢效果真心沒得說
2022 年 10 月 4 日